Smooth lines of potato bushes look very beautiful, showing order, and forming comfort for self-hilling or with the help of a cultivator. An unpleasant routine activity with the help of certain devices, for self-planting, can be a fun, simple, and enjoyable task, and designing your necessary hand tools is a process of technical creativity.
Today there are special devices-marker, scriber, hedgehogs, plow for planting and weeding potatoes. They will greatly facilitate the work of the gardener. The work, when using these simple devices, is much faster,and the result is the same effective, high-quality, if it is done by hand.
Table of contents
Marker for planting potatoes
A marker is a device that is needed to facilitate manual planting activities, as well as to make the beds even, with evenly distributed holes for potatoes. In consequence, these beds are not difficult to handle mechanized or manual devices.

Today you can buy ready-made markers, but it’s better to make a self-made fix, then the distance between adjacent plows, to organize holes for planting, will fully correspond to the distance between the wheels of the motor-cultivator or tractor.
Markers can be elementary or very complex. You can make them from any material that is at hand:
- Stakes of wood;
- Durable board;
- Special or round pipes from metal.
Elemental marker
This is a wooden stake about height 90 centimeters and in diameter about 60-70 millimeters. The horizontal bar, which is fixed at a height of about 150 millimeters from the base, will serve as a support limiting the depth of the hole. Before starting work with this device, it is necessary to make a rough outline of future holes using twine. It is stretched along the length of rows at a distance of approximately 40, 50, 60, 70 or 80 centimeters between the beds.
The distance between the beds depends on the subsequent method of tillage, manual or mechanized. The gap between the pits in a row is about 30 centimeters, depending on the size and variety of potatoes to be planted.
Marker mittlider
This is a more complex version of the marker, which is made of pipe, with an external Ø 21 mm. The distance between the holes will be equal to 29 centimeters. The cone with which the holes are made is made from a pipe Ø 55-65 millimeters. It must be welded to the frame.

On the initial row, the frame is placed parallel to the string and, applying the necessary force, is immersed in the soil. Then we put a cone in the hole that we have plotted, and so on. In the other row, the holes are made like on a chessboard. Marker, made by this method, allows you to plant potatoes in small areaswhile getting a high yield.
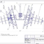
Three holes at the same time
This model consists of metal pipes and 3 cones.

The welded frame of the marker is made of a special light and strong pipe with the size of 25x25x2 millimeters. To do this, you can take the usual steel pipe Ø 32 mm, which is used for plumbing or gas pipeline. Cones are made of aluminum or acacia wood, oak.
A hole is made in the cylindrical part and an M8 thread is cut. In the pipe there are three such through holes Ø 9 millimeters. Through these holes, the cones are attached to the frame with M8 bolts. With the help of bolts the size of 40-80 millimeters, you can adjust the depth of the fossa. The distance between the cones is equal to 45 centimeters. In order not to get injured, you need to put plugs on the open ends of the carrier pipe.The height of the bolts may vary. This will depend on the depth of the desired fossa. The larger the bolt, the wider the possibilities.

Cones made of wood should be treated with sandpaper, apply varnish or linseed oil, so that when working on them the soil does not stick. All metal components must be treated against corrosion. The height of the frame must be done under your height. The values indicated on the drawing are suitable for the cottager with a height of 175 centimeters.
Scriber for planting potatoes
Planting potatoes with a scriber will reduce this process several times. Everything is done easily and without straining. It is not difficult to make it, any man will be able to do it and will take no more than 2 hours.

To make it you will need two stakes. Ø 10 centimeters and two boards and a half meters. Stakes are made from dried bars or not thick spruce trunks. They need to process, sharpen the edges and make pens. Then nail the wooden cross to them.
It is necessary to make the required distance between the stakes. If the potatoes are subsequently processed by a mini-tractor, then the distance should be about 65-70 centimeters, if it is a cultivator, then a distance of 60 centimeters will be rational.For manual processing, the stakes need to be positioned at a distance of 45-55 centimeters.
Pens need to be made for themselves, so that later there were no problems at work. The bottom board should be set so that, when pressed on it, the hole is obtained, with a depth of approximately 10-15 centimeters.

The idea of working with a scriber is as follows: putting it on the edge of the plot, you must hold it by the handles in front of you. Then put pressure on the board from the bottom, while the stakes sink into the soil, and the mark leaves a mark. Then her hands move, making the movement back and forth, in order to increase the pits. Two ridges of holes should turn out, and the third ridge will be a note from which it is necessary to follow, but already in the other direction, setting the count to the mark.
At the same time for the razmetovchik comes a man who plants potatoes. The whole process is quick and easy. Use this technique and facilitate your work on the site.
Homemade hand plow
When it is time to plant potatoes, gardeners act according to the following scheme: they make markings for planting, dig holes in the shovel, put potatoes in them and then fall asleep with their hands. While the potato grows it is necessary to spud more often they do it with a hoe. It takes a lot of time and effort. Today this process can be facilitated as much as possible.
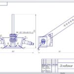
The manual plow is very simple adaptation with which 2 persons work at the same time. It consists of:
- 2 dump body for work, with a pruning knife;
- Traction front, in order for one person to pull him forward;
- Handles behind, to control the second person.
He performs work on cutting rows for disembarking, helps with hilling potatoes, and also loosens the ground.

In order to make such a device you will need:
- Hollow tube for vertical stand Ø2,5 centimeter, about 1 meter long.
- Piece of hollow tube Ø3/4 inches for the manufacture of traction front and rear;
- Sheet thrust 2 millimeters thick for making dumps;
- For connecting the front with a vertical stand lanyard will be needed which can be replaced with a metal plate with holes, to adjust the angle of attack;
- Blowtorch or a gas burner to heat the metal at the folds;
- Welding equipment;
- For machining joints need Bulgarian.
The long pipe should be bent at a distance of about 30 centimeters from the beginning, the angle should be 10-15 °. To perform the folds help pipe bend. In its absence, you can make the fold by the following method:
- Fill the tube by sand;
- Dress on the edge of the pipe stubs;
Estimated place of bending we heat with a blowtorch and begin to bend.
The smaller tube, as well as the perpendicular stand, must be bent. To adjust the height, we make holes on the upper edge and the same holes on the vertical section of the intended plug.

Traction in front looks the same as the rear, but differs in size. The height of the handle should be such that the one walking in front could easily be between the handles, clasping them.
The height of the vertical part should be 60 centimeters it is necessary to make it flat at the ends and drill holes for connection with the vertical section.
On the course 30 centimeters below the vertical stand attach the angle for traction front. Then, at a distance of 25 centimeters from this hole, weld the same corner of the size 25x25 to the plug. It also makes a hole, and weld it to the rack above the first corner.
2nd dump plow
2 identical plates will be required. 2 millimeter. On them we round bends. Using welding, smooth seams, fasten the 2 half of the plow to the perpendicular rack. Grind them with a grinder so that they are sharp.
Pruning knife

We take the strongest carbon steel. Cut a knife in the form of an arrowhead, sharpen it at an angle 45°. This angle will make the knife sharp for a long time. With the help of welding, fasten it to the vertical rack from the bottom, polish it.
Manual plow to work on the site is ready!
Cultivator hedgehogs for weeding
They remove the grass with roots, unlike flat-cutters, which only chop the stems. Hedgehogs row the soil between the rows, because of this, distinct rows and beautiful beds are obtained. About the loosened soil well passes oxygen and liquid, which increases the growth of potato roots, and this is a guarantee of an excellent harvest.

Weeding tillers made using certain legs or a rotating cutter. Mill twist shaft selection force. The advantage of the legs is ease of installation and thoroughness in loosening the earth. They loosen the soil at a depth of 4-7 centimeters, depending on its condition.
For operation, the legs must be fixed in certain fastenings at a distance equal to the width of the row. The fastener needs a slight overlap that will cover both legs. Adaptations can be both one and two-sided. If the device is one-sided, it is necessary to attach the legs so that the blades are located in the direction of the aisle.
There is another device for weeding by hand, which is called a miller. This is a frame, with a knife and a drum.His wheels are placed in the aisle, the knife cuts the grass, and the spinning drum catches it and throws it back.
Cultivators exist manual, electric with the petrol engine. For weeding using a device with 2 knives, which are mounted at an angle of 45 °. It is best to carry out weeding with a cultivator, on which, instead of knives, three serrated mini forks are installed.
For comfort, these devices are mounted on wheels: summer resident pushes him, pressing as close as possible to the garden bed.

Using a device with a nozzle hedgehog immediately weed and spud potatoes. Hedgehog consists of 2 cones attached to the frame. The cone is made of 3 steel wheels with different diameters. Pointed spikes are welded to the wheels. 2 hedgehogs are attached to the frame, spinning, they simultaneously hook on the grass and row the soil from the row spacing in a row.

Electric cultivators are more dynamic, they are used for small gardens. Their main drawback is the need to pull the cable from the outlet, which is not always comfortable. It is more rational to use cultivators with an engine on gasoline. But such cultivators are less dynamic than manual, but the most productive.On all types of cultivators wear nozzles hedgehog. The strength of the engine is selected depending on the state of the earth, the heavier it is, the stronger the device.
Weeding accessories with trimmer
For weeding using a trimmer, in which the electric motor is on top. Between the rows, we often weed off the trimmer head with the fishing line.
It happens that to remove the grass using a knife from 3 blades. Steel knives are attached to the trimmer with a flat stand. If the rack curve, then attach the nozzles of plastic. If the knife hits any obstacle, the device will fold back or break.

In the market or in the store you can buy nozzles for trimmer with earthen mills, which are shaped like discs with curved blades, and mounted on a single axis. More often in one nozzle 4 mills.

The size, diameter and number of milling cutters depend on the motor power of the mowers. The instructions for use for the nozzle indicates for which mowers it is suitable.
Professional gardeners before applying trimmer treat all friction elements with grease on silicone.
Processing rules for potatoes using a trimmer:
- Before processing you need protect your eyes and butc, as during weeding, the cutters spin at high speed, raising dust and dirt into the air.
- We need to treat the area from the weeds when the grass is still small. Processing should be done every two weeks..
- Weed better in the morning, then during the day the grass will dry out and turn into straw.
- No need to immerse the cutters to a depth of more than one and a half centimeters. With this technique, the land is cultivated, and the soil receives oxygen and nitrogen, which is excellent for potatoes.
- You can not immerse the cutters also because may break the device.
- If the engine on the device is not very powerful, then you need take a break every quarter of an hour.
- At the end of the summer season nozzles must be treated with a disinfectant, to remove all germs.

A broken cutter can be changed with a hand-made cutter. To do this, you need to carve a circle out of the steel sheet, and bend the cavities. Diameter can not be larger than the used cutters. It is forbidden to wear additional cutters on the trimmer shaft.
How to make hedgehogs with your own hands, drawings
If the gardener likes to work with the tool and at the same time save a lot, you can make hedgehogs for weeding with your own hands or order them in the organization for work with metal. First of all, you need to understand how hedgehogs will work, draw a few drawings. They can be used both on a cultivator, and for work as hands.
- Hilter rotor
- Ripper
- Base
- Hub
Hands-on hedgehogs can consist of a loosening device, a frame and a holder. The ripper is a hollow tube with steel teeth welded to it. It is fixed on the spacer frame and attached a wooden handle. Using it you need to roll the ground back and forth, which requires certain physical forces.
There are many versions of hedgehogs for the motoblock and the cultivator. Many developers made their individual devices. The traditional version of the hedgehog is made with steel discs. 3 disks of various diameters are required:
- 100, 200, 300 mm;
- 240, 180, 100 mm.
The assembly of the device is carried out on a Ø25 mm pipe. Using jumpers, steel discs are fastened to each other, starting with the largest and ending with the minimum. There are developers who use 5 and 6 facets instead of disks. The distance between them should be 18 centimeters, and the maximum disc Ø 36 centimeters. For the teeth used steel bar, cut into 40 pieces.

Approximately for the construction you will need 5 pieces of spikes on a small disk, 10 pieces per medium, 15 pieces per maximum. It happens that the required welding studs on the axle. The length of one spike is 14 centimeters.
Today there are several types of hedgehogs:
- Rotary. The main task of such hedgehogs is weeding and hilling. They fit any device.
- Conical. Required to remove the grass before the shoot.
If we sum up the results, it can be noted that the use of devices for planting, harrowing, weeding and hilling potatoes at the dacha will make this process easy andnot laborious. Using a variety of samples, it is safe to say that the harvest will be abundant and will please the gardener.



